
Pending Listing by: RE/MAX Professionals
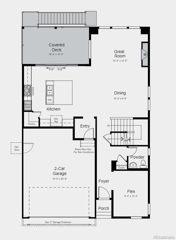
MLS#7709608 REPRESENTATIVE PHOTOS ADDED. October Completion! The spacious Hayden floorplan at Looking Glass features a welcoming two-story layout. Enter through an inviting entryway, leading to a main floor bedroom and bathroom. The kitchen offers ample space, including a large pantry and an eat-in island that seamlessly connects to the airy great room and dining area. The open floorplan is highlighted by a vast great room with an 8’x12′ sliding glass door and a cozy fireplace. Upstairs, you’ll find a generously sized primary suite, two additional bedrooms, a full bathroom, and a convenient laundry room next to a charming loft space. With a walkout unfinished basement, this home is perfect for a growing family. Structural options include: 9′ walkout unfinished basement with plumbing rough ins, modern 42″ fireplace, 8′ x 12′ sliding glass door, bedroom 4 with bathroom 3, built in 1 kitchen package, and upgraded rail and spindle package.
The content relating to real estate for sale in this Web site comes in part from the Internet Data eXchange ("IDX") program of METROLIST, INC., DBA RECOLORADO® Real estate listings held by brokers other than RE/MAX Professionals are marked with the IDX Logo. This information is being provided for the consumers' personal, non-commercial use and may not be used for any other purpose. All information subject to change and should be independently verified. The listing broker’s offer of compensation is made only to participants of the MLS where the listing is filed. This publication is designed to provide information with regard to the subject matter covered. It is displayed with the understanding that the publisher and authors are not engaged in rendering real estate, legal, accounting, tax, or other professional services and that the publisher and authors are not offering such advice in this publication. If real estate, legal, or other expert assistance is required, the services of a competent, professional person should be sought. The information contained in this publication is subject to change without notice. METROLIST, INC., DBA RECOLORADO MAKES NO WARRANTY OF ANY KIND WITH REGARD TO THIS MATERIAL, INCLUDING, BUT NOT LIMITED TO, THE IMPLIED WARRANTIES OF MERCHANTABILITY AND FITNESS FOR A PARTICULAR PURPOSE. METROLIST, INC., DBA RECOLORADO SHALL NOT BE LIABLE FOR ERRORS CONTAINED HEREIN OR FOR ANY DAMAGES IN CONNECTION WITH THE FURNISHING, PERFORMANCE, OR USE OF THIS MATERIAL. PUBLISHER'S NOTICE: All real estate advertised herein is subject to the Federal Fair Housing Act and the Colorado Fair Housing Act, which Acts make it illegal to make or publish any advertisement that indicates any preference, limitation, or discrimination based on race, color, religion, sex, handicap, familial status, or national origin. METROLIST, INC., DBA RECOLORADO will not knowingly accept any advertising for real estate that is in violation of the law. All persons are hereby informed that all dwellings advertised are available on an equal opportunity basis. © 2024 METROLIST, INC., DBA RECOLORADO® - All Rights Reserved 6455 S. Yosemite St., Suite 500 Greenwood Village, CO 80111 USA ALL RIGHTS RESERVED WORLDWIDE. No part of this publication may be reproduced, adapted, translated, stored in a retrieval system or transmitted in any form or by any means, electronic, mechanical, photocopying, recording, or otherwise, without the prior written permission of the publisher. The information contained herein including but not limited to all text, photographs, digital images, virtual tours, may be seeded and monitored for protection and tracking.
Data services provided by IDX Broker
| Price: | $$723,990 |
| Address: | 13265 Blue Amber Court |
| City: | Parker |
| County: | Douglas |
| State: | Colorado |
| Subdivision: | The Fields at Looking Glass |
| MLS: | 7709608 |
| Square Feet: | 3,241 |
| Acres: | 0.15 |
| Lot Square Feet: | 0.15 acres |
| Bedrooms: | 4 |
| Bathrooms: | 3 |
| ppa: | 4826600.00 |
| levels: | Two |
| taxYear: | 2023 |
| psfTotal: | 223.38 |
| furnished: | Unfurnished |
| lotNumber: | 57 |
| priceType: | List Price |
| roomCount: | 11 |
| areaSource: | Builder |
| basementYN: | yes |
| directions: | From I-25 S and Crowfoot Valley Road: Head South on I-25, Use the right 2 lanes to exit 184 for US-85 N/Meadows Pkwy towards CO-86 E/Founders Pkwy. Use the left 2 lanes to turn left onto Meadows Pkwy. Continue onto Founders Pkwy, Turn left onto Crowfoot Valley Road, the community will be on your left. The model home is located at 13326 Blue Amber Court, Parker, CO 80134. |
| exclusions: | N/A |
| highSchool: | Ponderosa |
| possession: | Closing/DOD |
| builderName: | Taylor Morrison |
| commonWalls: | No Common Walls |
| contingency: | None Known |
| lotSizeArea: | 6642 |
| psfFinished: | 327.60 |
| builderModel: | Hayden II |
| buildingName: | Town Collection |
| listingTerms: | Cash, Conventional, FHA, VA Loan |
| lotSizeUnits: | Square Feet |
| parkingCount: | 1 |
| psfAboveGrade: | 327.60 |
| structureType: | House |
| directionFaces: | West |
| homeWarrantyYN: | yes |
| rentalsAllowed: | Long Term |
| associationName: | Looking Glass Owner’s Association |
| feeFrequencyMLS: | Monthly |
| taxAnnualAmount: | 8784 |
| waterIncludedYN: | yes |
| elementarySchool: | Legacy Point |
| schoolOfChoiceYN: | yes |
| mainLevelBedrooms: | 1 |
| propertyCondition: | Under Construction |
| attributionContact: | 303-799-9898 |
| contractMinEarnest: | 35000.00 |
| mainLevelBathrooms: | 1 |
| upperLevelBedrooms: | 3 |
| upperLevelBathrooms: | 2 |
| allowedUseCaseGroups: | IDX |
| associationFeeAnnual: | 600.00 |
| middleOrJuniorSchool: | Sagewood |
| associationFee2Annual: | 0.00 |
| associationFee3Annual: | 0.00 |
| restrictionsCovenants: | Lease Restrictions |
| aboveGradeFinishedArea: | 2210 |
| associationFeeIncludes: | Maintenance Grounds, Trash |
| contractEarnestCheckTo: | Taylor Morrison of Colorado Inc. |
| interiorOrRoomFeatures: | Built-in Features, Eat-in Kitchen, Kitchen Island, Open Floorplan, Walk-In Closet(s), Wired for Data |
| multipleAssociationsYN: | no |
| restrictionsCovenantsYN: | yes |
| specialTaxingDistrictYN: | yes |
| belowGradeUnfinishedArea: | 1031.00 |
| specialListingConditions: | None |
| associationFeeTotalAnnual: | 600.00 |
| associationManagementType: | Professionally Managed |
| middleOrJuniorSchoolDistrict: | Douglas RE-1 |
| timeOfCompletionFromGroundbr: | Est. October |