
Pending Listing by: RE/MAX Professionals
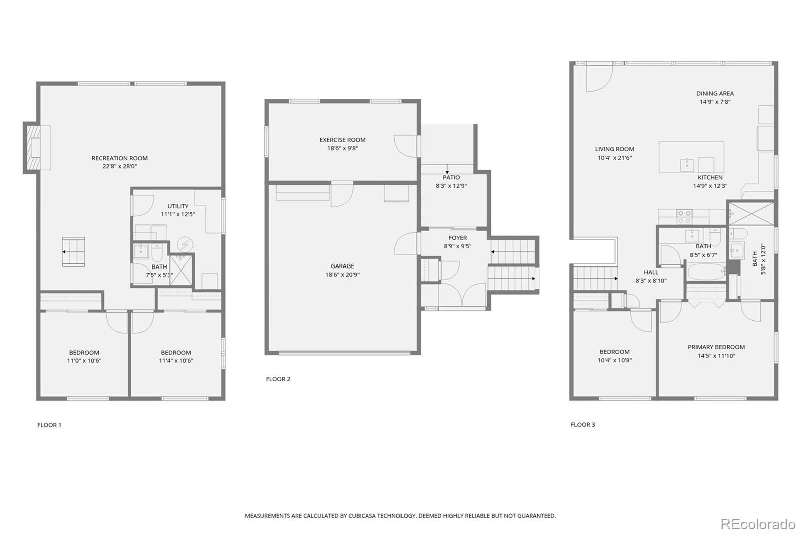
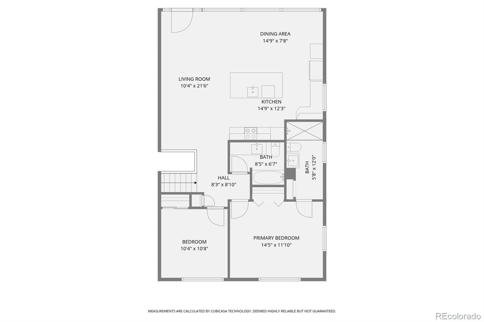
Located on a large corner site in a cul-de-sac, this gorgeous, updated bi-level features 4 bedrooms (2 upper / 2 lower), 3 bathrooms, open concept living/dining/kitchen space, lower level family room, main floor flex room off the 2 car garage (with a workshop/tool shed space) and additional RV parking. Meticulously maintained – pride of ownership shines throughout. This home lives large. The many windows and skylights allow the natural light to cascade in – bright and cheerful. Modern and fresh while retaining wonderful original features – vaulted ceilings, exposed beam in the living room, wood burning fireplace in the family room and some wood accents throughout. The spacious rear yard offers privacy and a wonderful space for relaxing – mature landscaping w/privacy fence OR entertain on the 2 rear patios and deck. No HOA and located in the great Jefferson county school district. Ideally situation for easy access to I70, Hwy 6 and just a short trip to the mountains, hiking trails (less than a mile from Green Mountain Trailhead), parks and more. Just a 5 minute walk to the community pool or Kyffin School. Close to dining, shopping, entertainment and other amenities. Welcome Home!
The content relating to real estate for sale in this Web site comes in part from the Internet Data eXchange ("IDX") program of METROLIST, INC., DBA RECOLORADO® Real estate listings held by brokers other than RE/MAX Professionals are marked with the IDX Logo. This information is being provided for the consumers' personal, non-commercial use and may not be used for any other purpose. All information subject to change and should be independently verified. The listing broker’s offer of compensation is made only to participants of the MLS where the listing is filed. This publication is designed to provide information with regard to the subject matter covered. It is displayed with the understanding that the publisher and authors are not engaged in rendering real estate, legal, accounting, tax, or other professional services and that the publisher and authors are not offering such advice in this publication. If real estate, legal, or other expert assistance is required, the services of a competent, professional person should be sought. The information contained in this publication is subject to change without notice. METROLIST, INC., DBA RECOLORADO MAKES NO WARRANTY OF ANY KIND WITH REGARD TO THIS MATERIAL, INCLUDING, BUT NOT LIMITED TO, THE IMPLIED WARRANTIES OF MERCHANTABILITY AND FITNESS FOR A PARTICULAR PURPOSE. METROLIST, INC., DBA RECOLORADO SHALL NOT BE LIABLE FOR ERRORS CONTAINED HEREIN OR FOR ANY DAMAGES IN CONNECTION WITH THE FURNISHING, PERFORMANCE, OR USE OF THIS MATERIAL. PUBLISHER'S NOTICE: All real estate advertised herein is subject to the Federal Fair Housing Act and the Colorado Fair Housing Act, which Acts make it illegal to make or publish any advertisement that indicates any preference, limitation, or discrimination based on race, color, religion, sex, handicap, familial status, or national origin. METROLIST, INC., DBA RECOLORADO will not knowingly accept any advertising for real estate that is in violation of the law. All persons are hereby informed that all dwellings advertised are available on an equal opportunity basis. © 2025 METROLIST, INC., DBA RECOLORADO® - All Rights Reserved 6455 S. Yosemite St., Suite 500 Greenwood Village, CO 80111 USA ALL RIGHTS RESERVED WORLDWIDE. No part of this publication may be reproduced, adapted, translated, stored in a retrieval system or transmitted in any form or by any means, electronic, mechanical, photocopying, recording, or otherwise, without the prior written permission of the publisher. The information contained herein including but not limited to all text, photographs, digital images, virtual tours, may be seeded and monitored for protection and tracking.
Data services provided by IDX Broker
| Price: | $945,000 |
| Address: | 14317 W 4th Place |
| City: | Golden |
| County: | Jefferson |
| State: | Colorado |
| Subdivision: | 6th Avenue West |
| MLS: | 7492814 |
| Square Feet: | 2,312 |
| Acres: | 0.27 |
| Lot Square Feet: | 0.27 acres |
| Bedrooms: | 4 |
| Bathrooms: | 3 |
| Half Bathrooms: | 2 |
| ppa: | 3500000.00 |
| levels: | Bi-Level |
| taxYear: | 2024 |
| psfTotal: | 408.74 |
| priceType: | List Price |
| roomCount: | 13 |
| areaSource: | Public Records |
| basementYN: | no |
| directions: | From south frontage road of 6th Ave, between Indiana Street and the entrance to Red Rocks Community College, take Flora Way to second cul-de-sac on the right to property on the corner. |
| exclusions: | Seller's personal possessions, garage refrigerator. Negotiable - gym equipment (treadmill, bike, weight rack, mirrors) |
| highSchool: | Golden |
| possession: | Negotiable |
| commonWalls: | No Common Walls |
| contingency: | None Known |
| lotSizeArea: | 11587 |
| psfFinished: | 408.74 |
| listingTerms: | Cash, Conventional, FHA, VA Loan |
| lotSizeUnits: | Square Feet |
| parkingCount: | 1 |
| psfAboveGrade: | 408.74 |
| structureType: | House |
| windowFeatures: | Double Pane Windows, Skylight(s), Window Coverings |
| roadSurfaceType: | Paved |
| taxAnnualAmount: | 4577 |
| waterIncludedYN: | yes |
| elementarySchool: | Kyffin |
| roadFrontageType: | Public |
| propertyCondition: | Updated/Remodeled |
| restrictionsOther: | Buyer to check City / County Regulations |
| contractMinEarnest: | 10000.00 |
| lowerLevelBedrooms: | 2 |
| roadResponsibility: | Public Maintained Road |
| upperLevelBedrooms: | 2 |
| lowerLevelBathrooms: | 1 |
| upperLevelBathrooms: | 2 |
| allowedUseCaseGroups: | IDX |
| associationFeeAnnual: | 0.00 |
| middleOrJuniorSchool: | Bell |
| associationFee2Annual: | 0.00 |
| associationFee3Annual: | 0.00 |
| restrictionsCovenants: | Other |
| aboveGradeFinishedArea: | 2312 |
| contractEarnestCheckTo: | First American Title |
| interiorOrRoomFeatures: | Ceiling Fan(s), Entrance Foyer, Kitchen Island, Primary Suite, Quartz Counters, Vaulted Ceiling(s) |
| multipleAssociationsYN: | no |
| restrictionsCovenantsYN: | yes |
| specialTaxingDistrictYN: | no |
| specialListingConditions: | None |
| associationFeeTotalAnnual: | 0.00 |
| middleOrJuniorSchoolDistrict: | Jefferson County R-1 |