
Active Listing by: RE/MAX Professionals
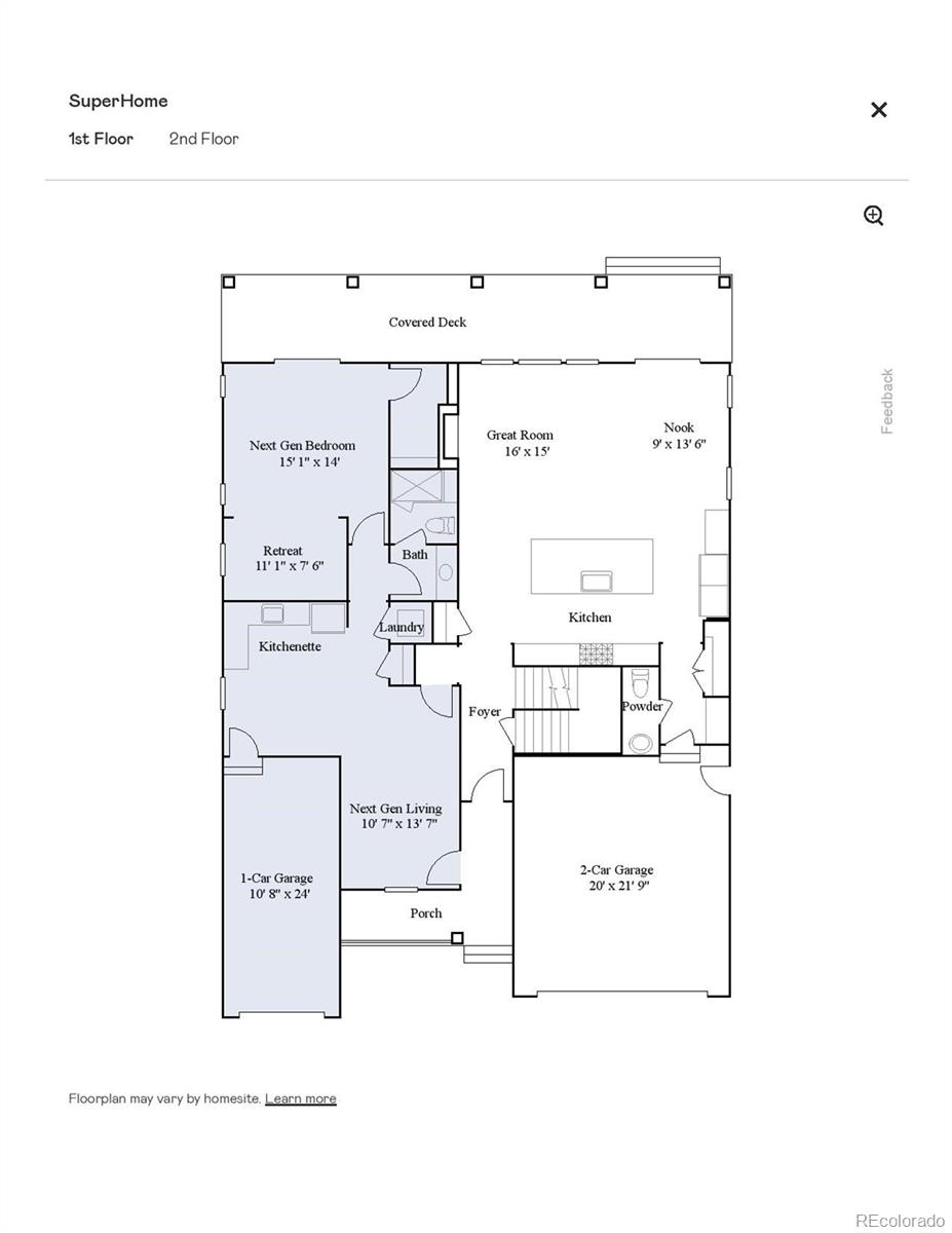
Anticipated completion September 2024. This beautiful 3882 Sq. Ft., 5 Bedroom, 4.5 bath home features a convenient Next Gen® suite with a private entrance, living room, kitchenette, bedroom, bathroom and 2 + 1 car garages and unfinished basement for future expansion. The first floor of the main home is host to the open-concept living and dining space, while the second level is occupied by three bedrooms a spacious loft and owners suite. A generous covered deck spans the rear. The unique Superhome floor plan is a revelation for multi-generational families, or can function as the perfect live/work environment. Lennar’s Everything’s Included package means beautiful finishes and features are standard, including quartz countertops throughout, vinyl plank flooring, stainless steel appliances, a full unfinished basement, and more. Photos and walkthrough tour are of model only and subject to change.
The content relating to real estate for sale in this Web site comes in part from the Internet Data eXchange ("IDX") program of METROLIST, INC., DBA RECOLORADO® Real estate listings held by brokers other than RE/MAX Professionals are marked with the IDX Logo. This information is being provided for the consumers' personal, non-commercial use and may not be used for any other purpose. All information subject to change and should be independently verified. The listing broker’s offer of compensation is made only to participants of the MLS where the listing is filed. This publication is designed to provide information with regard to the subject matter covered. It is displayed with the understanding that the publisher and authors are not engaged in rendering real estate, legal, accounting, tax, or other professional services and that the publisher and authors are not offering such advice in this publication. If real estate, legal, or other expert assistance is required, the services of a competent, professional person should be sought. The information contained in this publication is subject to change without notice. METROLIST, INC., DBA RECOLORADO MAKES NO WARRANTY OF ANY KIND WITH REGARD TO THIS MATERIAL, INCLUDING, BUT NOT LIMITED TO, THE IMPLIED WARRANTIES OF MERCHANTABILITY AND FITNESS FOR A PARTICULAR PURPOSE. METROLIST, INC., DBA RECOLORADO SHALL NOT BE LIABLE FOR ERRORS CONTAINED HEREIN OR FOR ANY DAMAGES IN CONNECTION WITH THE FURNISHING, PERFORMANCE, OR USE OF THIS MATERIAL. PUBLISHER'S NOTICE: All real estate advertised herein is subject to the Federal Fair Housing Act and the Colorado Fair Housing Act, which Acts make it illegal to make or publish any advertisement that indicates any preference, limitation, or discrimination based on race, color, religion, sex, handicap, familial status, or national origin. METROLIST, INC., DBA RECOLORADO will not knowingly accept any advertising for real estate that is in violation of the law. All persons are hereby informed that all dwellings advertised are available on an equal opportunity basis. © 2024 METROLIST, INC., DBA RECOLORADO® - All Rights Reserved 6455 S. Yosemite St., Suite 500 Greenwood Village, CO 80111 USA ALL RIGHTS RESERVED WORLDWIDE. No part of this publication may be reproduced, adapted, translated, stored in a retrieval system or transmitted in any form or by any means, electronic, mechanical, photocopying, recording, or otherwise, without the prior written permission of the publisher. The information contained herein including but not limited to all text, photographs, digital images, virtual tours, may be seeded and monitored for protection and tracking.
Data services provided by IDX Broker
| Price: | $$1,174,900 |
| Address: | 15617 W Beloit Avenue |
| City: | Morrison |
| County: | Jefferson |
| State: | Colorado |
| Subdivision: | Red Rocks Ranch |
| MLS: | 2751185 |
| Square Feet: | 5,722 |
| Acres: | 0.15 |
| Lot Square Feet: | 0.15 acres |
| Bedrooms: | 5 |
| Bathrooms: | 5 |
| Half Bathrooms: | 4 |
| ppa: | 7832666.67 |
| levels: | Two |
| taxYear: | 2023 |
| psfTotal: | 205.33 |
| priceType: | List Price |
| roomCount: | 17 |
| areaSource: | Builder |
| basementYN: | yes |
| exclusions: | Seller's Personal Possessions and any staging items that may be in use. |
| highSchool: | Green Mountain |
| possession: | Closing/DOD |
| builderName: | Lennar |
| commonWalls: | No Common Walls |
| lotSizeArea: | 6746 |
| psfFinished: | 302.65 |
| builderModel: | Superhome / CR |
| listingTerms: | Cash, Conventional, FHA, VA Loan |
| lotSizeUnits: | Square Feet |
| parkingCount: | 2 |
| psfAboveGrade: | 302.65 |
| structureType: | House |
| homeWarrantyYN: | yes |
| windowFeatures: | Double Pane Windows |
| associationName: | Red Rocks Community Association |
| feeFrequencyMLS: | Monthly |
| roadSurfaceType: | Paved |
| taxAnnualAmount: | 14829 |
| waterIncludedYN: | yes |
| elementarySchool: | Hutchinson |
| roadFrontageType: | Public |
| mainLevelBedrooms: | 1 |
| propertyCondition: | Under Construction |
| attributionContact: | tomrman@aol.com,303-910-8436 |
| contractMinEarnest: | 10000.00 |
| mainLevelBathrooms: | 2 |
| roadResponsibility: | Public Maintained Road |
| upperLevelBedrooms: | 4 |
| upperLevelBathrooms: | 3 |
| allowedUseCaseGroups: | IDX |
| associationFeeAnnual: | 672.00 |
| middleOrJuniorSchool: | Dunstan |
| associationFee2Annual: | 0.00 |
| associationFee3Annual: | 0.00 |
| basementCeilingHeight: | 9' |
| restrictionsCovenants: | Other |
| aboveGradeFinishedArea: | 3882 |
| associationFeeIncludes: | Maintenance Grounds, Snow Removal |
| contractEarnestCheckTo: | Lennar Homes |
| interiorOrRoomFeatures: | Eat-in Kitchen, Entrance Foyer, Kitchen Island, Open Floorplan, Primary Suite, Smoke Free, Walk-In Closet(s) |
| multipleAssociationsYN: | no |
| restrictionsCovenantsYN: | yes |
| specialTaxingDistrictYN: | no |
| belowGradeUnfinishedArea: | 1840.00 |
| specialListingConditions: | None |
| associationFeeTotalAnnual: | 672.00 |
| associationManagementType: | Professionally Managed |
| middleOrJuniorSchoolDistrict: | Jefferson County R-1 |