
Active Listing by: RE/MAX Professionals
What’s Special: Multi-Gen Suite | Backs to Open Space | 3-Car Tandem Garage.
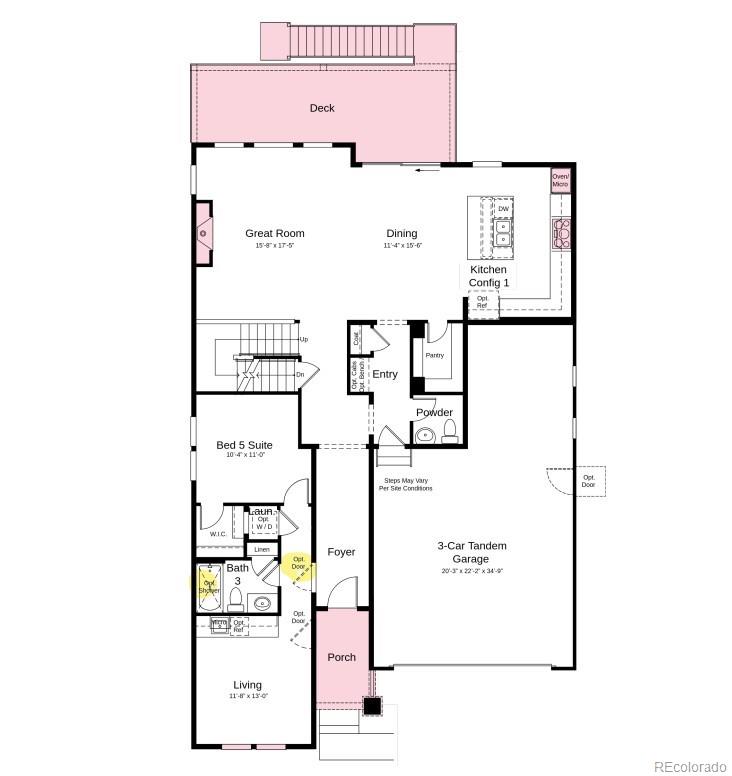
New Construction – December Completion! Built by America’s Most Trusted Homebuilder. Welcome to the Fairmount at 3602 Recess Lane in Macanta City Collection! This spacious two-story home is designed for comfort and connection, featuring an open kitchen with a large island, walk-in pantry, and dining area that flows into a soaring great room. Just beyond, enjoy outdoor living and Colorado sunshine. A private multi-generational suite on the first floor includes its own living area, kitchenette, full bath, laundry, and bedroom. Upstairs, the primary suite offers a spa-inspired bath and walk-in closet, joined by three additional bedrooms, a full bath, loft, and laundry. Castle Rock is a vibrant community with charming downtown shops, cafes, and year-round events. At Macanta, explore over 1,000 acres of open space and trails, plus The Spoke amenity center with fitness, pools, and co-working spaces—all just minutes from I-25 and Denver. Additional Highlights Include: Fireplace at great room, covered outdoor living, and additional sink at bath 2. Photos are for representative purposes only.
The content relating to real estate for sale in this Web site comes in part from the Internet Data eXchange ("IDX") program of METROLIST, INC., DBA RECOLORADO® Real estate listings held by brokers other than RE/MAX Professionals are marked with the IDX Logo. This information is being provided for the consumers' personal, non-commercial use and may not be used for any other purpose. All information subject to change and should be independently verified. The listing broker’s offer of compensation is made only to participants of the MLS where the listing is filed. This publication is designed to provide information with regard to the subject matter covered. It is displayed with the understanding that the publisher and authors are not engaged in rendering real estate, legal, accounting, tax, or other professional services and that the publisher and authors are not offering such advice in this publication. If real estate, legal, or other expert assistance is required, the services of a competent, professional person should be sought. The information contained in this publication is subject to change without notice. METROLIST, INC., DBA RECOLORADO MAKES NO WARRANTY OF ANY KIND WITH REGARD TO THIS MATERIAL, INCLUDING, BUT NOT LIMITED TO, THE IMPLIED WARRANTIES OF MERCHANTABILITY AND FITNESS FOR A PARTICULAR PURPOSE. METROLIST, INC., DBA RECOLORADO SHALL NOT BE LIABLE FOR ERRORS CONTAINED HEREIN OR FOR ANY DAMAGES IN CONNECTION WITH THE FURNISHING, PERFORMANCE, OR USE OF THIS MATERIAL. PUBLISHER'S NOTICE: All real estate advertised herein is subject to the Federal Fair Housing Act and the Colorado Fair Housing Act, which Acts make it illegal to make or publish any advertisement that indicates any preference, limitation, or discrimination based on race, color, religion, sex, handicap, familial status, or national origin. METROLIST, INC., DBA RECOLORADO will not knowingly accept any advertising for real estate that is in violation of the law. All persons are hereby informed that all dwellings advertised are available on an equal opportunity basis. © 2026 METROLIST, INC., DBA RECOLORADO® - All Rights Reserved 6455 S. Yosemite St., Suite 500 Greenwood Village, CO 80111 USA ALL RIGHTS RESERVED WORLDWIDE. No part of this publication may be reproduced, adapted, translated, stored in a retrieval system or transmitted in any form or by any means, electronic, mechanical, photocopying, recording, or otherwise, without the prior written permission of the publisher. The information contained herein including but not limited to all text, photographs, digital images, virtual tours, may be seeded and monitored for protection and tracking.
Data services provided by IDX Broker
| Price: | $878,990 |
| Address: | 3602 Recess Lane |
| City: | Castle Rock |
| County: | Douglas |
| State: | Colorado |
| Subdivision: | Macanta |
| MLS: | 1627591 |
| Square Feet: | 3,920 |
| Acres: | 0.13 |
| Lot Square Feet: | 0.13 acres |
| Bedrooms: | 5 |
| Bathrooms: | 4 |
| Half Bathrooms: | 1 |
| ppa: | 6761461.54 |
| levels: | Two |
| taxYear: | 2024 |
| psfTotal: | 224.23 |
| furnished: | Unfurnished |
| lotNumber: | 23 |
| priceType: | List Price |
| roomCount: | 15 |
| areaSource: | Plans |
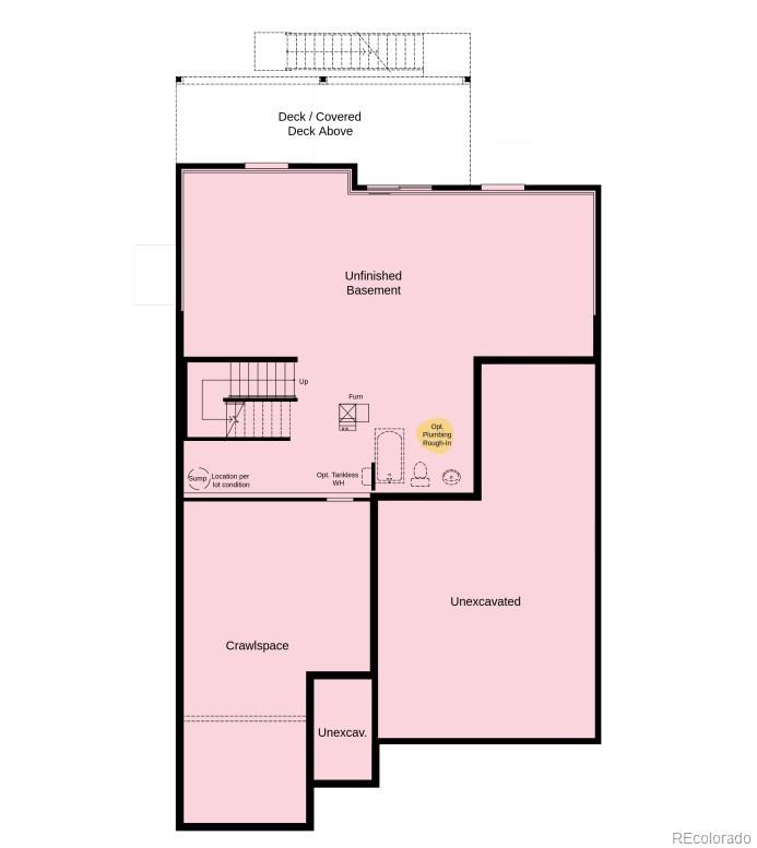
| basementYN: | yes |
| directions: | From I-25: Head southeast on I-25 South. Use the right 2 lanes to take exit 184 for Us-85 N/Meadows Pkwy towards CO-86 E/Founders Pkwy. Use the left two lanes to turn left onto Meadows Pkwy. Continue onto Founders Pkwy. Turn left onto Crowfoot Valley Road, and your destination will be on your right. The model home is at 3947 Breakcamp Court, Castle Rock, CO 80108. |
| exclusions: | none |
| highSchool: | Ponderosa |
| possession: | Closing/DOD |
| builderName: | Taylor Morrison |
| lotSizeArea: | 5698 |
| psfFinished: | 295.46 |
| builderModel: | Fairmount |
| listingTerms: | Cash, Conventional, FHA, VA Loan |
| lotSizeUnits: | Square Feet |
| parkingCount: | 1 |
| psfAboveGrade: | 295.46 |
| structureType: | House |
| directionFaces: | Northeast |
| homeWarrantyYN: | yes |
| associationName: | Macanta Community Association |
| feeFrequencyMLS: | Monthly |
| hvacDescription: | Lennox |
| roadSurfaceType: | Paved |
| taxAnnualAmount: | 9838 |
| waterIncludedYN: | no |
| elementarySchool: | Legacy Point |
| developmentStatus: | Reservations/Pre-Sale |
| mainLevelBedrooms: | 1 |
| propertyCondition: | New Construction |
| contractMinEarnest: | 35000.00 |
| mainLevelBathrooms: | 2 |
| upperLevelBedrooms: | 4 |
| upperLevelBathrooms: | 2 |
| allowedUseCaseGroups: | IDX |
| associationFeeAnnual: | 1200.00 |
| middleOrJuniorSchool: | Sagewood |
| associationFee2Annual: | 0.00 |
| associationFee3Annual: | 0.00 |
| basementCeilingHeight: | 9' |
| restrictionsCovenants: | Deed Restrictions,Lease Restrictions |
| aboveGradeFinishedArea: | 2975 |
| associationFeeIncludes: | Maintenance Grounds, Recycling, Trash |
| contractEarnestCheckTo: | Taylor Morrison of Colorado Inc. |
| interiorOrRoomFeatures: | Eat-in Kitchen, Entrance Foyer, High Ceilings, In-Law Floorplan, Kitchen Island, Open Floorplan, Pantry, Primary Suite, Quartz Counters, Walk-In Closet(s), Wired for Data |
| multipleAssociationsYN: | no |
| restrictionsCovenantsYN: | yes |
| specialTaxingDistrictYN: | no |
| specialListingConditions: | None |
| associationFeeTotalAnnual: | 1200.00 |
| associationManagementType: | Professionally Managed |
| middleOrJuniorSchoolDistrict: | Douglas RE-1 |