
Pending Listing by: RE/MAX Professionals
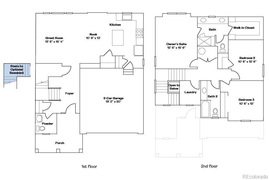
Available in July 2024! Beautiful Tabor 2-story located in the brand new Legacy Village features 3 beds, 2.5 baths, great room, kitchen, crawlspace and a 2 car garage. Lennar provides the latest in energy efficiency and state of the art technology with several fabulous floorplans to choose from. This home includes a large mudroom, walk-in pantry, vinyl plank floors on the main level, slab quartz counters and so much more. Energy efficiency & technology/connectivity seamlessly blended with luxury to make your new house a home. What some builders consider high-end upgrades, Lennar makes a standard inclusion. This community offers single family homes for every lifestyle. Close to dining, shopping, entertainment and other amenities. Come see what you have been missing today! Don’t wait – this community will sell out quickly! Model photos and walkthrough tour are representative of the model only and subject to change.
The content relating to real estate for sale in this Web site comes in part from the Internet Data eXchange ("IDX") program of METROLIST, INC., DBA RECOLORADO® Real estate listings held by brokers other than RE/MAX Professionals are marked with the IDX Logo. This information is being provided for the consumers' personal, non-commercial use and may not be used for any other purpose. All information subject to change and should be independently verified. The listing broker’s offer of compensation is made only to participants of the MLS where the listing is filed. This publication is designed to provide information with regard to the subject matter covered. It is displayed with the understanding that the publisher and authors are not engaged in rendering real estate, legal, accounting, tax, or other professional services and that the publisher and authors are not offering such advice in this publication. If real estate, legal, or other expert assistance is required, the services of a competent, professional person should be sought. The information contained in this publication is subject to change without notice. METROLIST, INC., DBA RECOLORADO MAKES NO WARRANTY OF ANY KIND WITH REGARD TO THIS MATERIAL, INCLUDING, BUT NOT LIMITED TO, THE IMPLIED WARRANTIES OF MERCHANTABILITY AND FITNESS FOR A PARTICULAR PURPOSE. METROLIST, INC., DBA RECOLORADO SHALL NOT BE LIABLE FOR ERRORS CONTAINED HEREIN OR FOR ANY DAMAGES IN CONNECTION WITH THE FURNISHING, PERFORMANCE, OR USE OF THIS MATERIAL. PUBLISHER'S NOTICE: All real estate advertised herein is subject to the Federal Fair Housing Act and the Colorado Fair Housing Act, which Acts make it illegal to make or publish any advertisement that indicates any preference, limitation, or discrimination based on race, color, religion, sex, handicap, familial status, or national origin. METROLIST, INC., DBA RECOLORADO will not knowingly accept any advertising for real estate that is in violation of the law. All persons are hereby informed that all dwellings advertised are available on an equal opportunity basis. © 2024 METROLIST, INC., DBA RECOLORADO® - All Rights Reserved 6455 S. Yosemite St., Suite 500 Greenwood Village, CO 80111 USA ALL RIGHTS RESERVED WORLDWIDE. No part of this publication may be reproduced, adapted, translated, stored in a retrieval system or transmitted in any form or by any means, electronic, mechanical, photocopying, recording, or otherwise, without the prior written permission of the publisher. The information contained herein including but not limited to all text, photographs, digital images, virtual tours, may be seeded and monitored for protection and tracking.
Data services provided by IDX Broker
| Price: | $$524,900 |
| Address: | 400 Paloma Way |
| City: | Elizabeth |
| County: | Elbert |
| State: | Colorado |
| Subdivision: | Legacy Village |
| MLS: | 3644448 |
| Square Feet: | 1,813 |
| Acres: | 0.160 |
| Lot Square Feet: | 0.160 acres |
| Bedrooms: | 3 |
| Bathrooms: | 3 |
| Half Bathrooms: | 2 |
| ppa: | 3280625.00 |
| levels: | Two |
| taxYear: | 2023 |
| psfTotal: | 289.52 |
| priceType: | Base Price |
| roomCount: | 8 |
| areaSource: | Builder |
| basementYN: | no |
| exclusions: | Seller's Personal Possessions and any staging items that may be in use. |
| highSchool: | Elizabeth |
| possession: | Closing/DOD |
| builderName: | Lennar |
| commonWalls: | No Common Walls |
| contingency: | None Known |
| lotSizeArea: | 7057 |
| psfFinished: | 289.52 |
| builderModel: | Tabor / CR |
| listingTerms: | Cash, Conventional, FHA, VA Loan |
| lotSizeUnits: | Square Feet |
| parkingCount: | 1 |
| psfAboveGrade: | 289.52 |
| structureType: | House |
| homeWarrantyYN: | yes |
| windowFeatures: | Double Pane Windows |
| associationName: | MSI - Legacy Village |
| feeFrequencyMLS: | Monthly |
| roadSurfaceType: | Paved |
| taxAnnualAmount: | 6141 |
| waterIncludedYN: | yes |
| elementarySchool: | Running Creek |
| roadFrontageType: | Public |
| propertyCondition: | New Construction, Under Construction |
| attributionContact: | tomrman@aol.com,303-910-8436 |
| contractMinEarnest: | 5000.00 |
| mainLevelBathrooms: | 1 |
| roadResponsibility: | Public Maintained Road |
| upperLevelBedrooms: | 3 |
| upperLevelBathrooms: | 2 |
| allowedUseCaseGroups: | IDX |
| associationFeeAnnual: | 900.00 |
| middleOrJuniorSchool: | Elizabeth |
| associationFee2Annual: | 0.00 |
| associationFee3Annual: | 0.00 |
| restrictionsCovenants: | Other |
| aboveGradeFinishedArea: | 1813 |
| contractEarnestCheckTo: | Lennar |
| interiorOrRoomFeatures: | Breakfast Nook, Kitchen Island, Pantry, Smoke Free, Walk-In Closet(s) |
| multipleAssociationsYN: | no |
| restrictionsCovenantsYN: | yes |
| specialTaxingDistrictYN: | no |
| specialListingConditions: | None |
| associationFeeTotalAnnual: | 900.00 |
| associationManagementType: | Professionally Managed |
| associationTransferAmount: | $325 |
| middleOrJuniorSchoolDistrict: | Elizabeth C-1 |
| timeOfCompletionFromGroundbr: | Available NOW! |