
Pending Listing by: RE/MAX Professionals
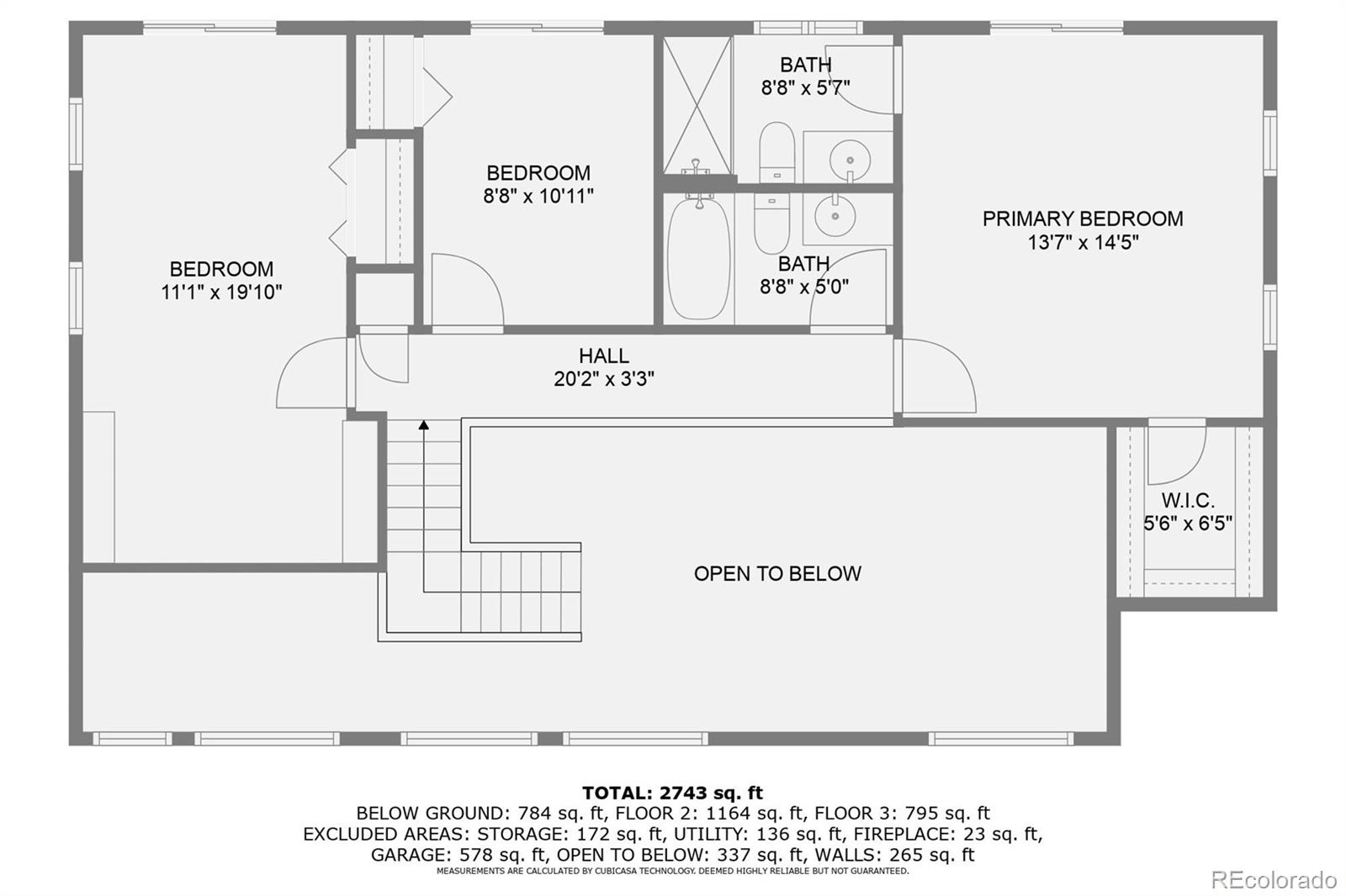
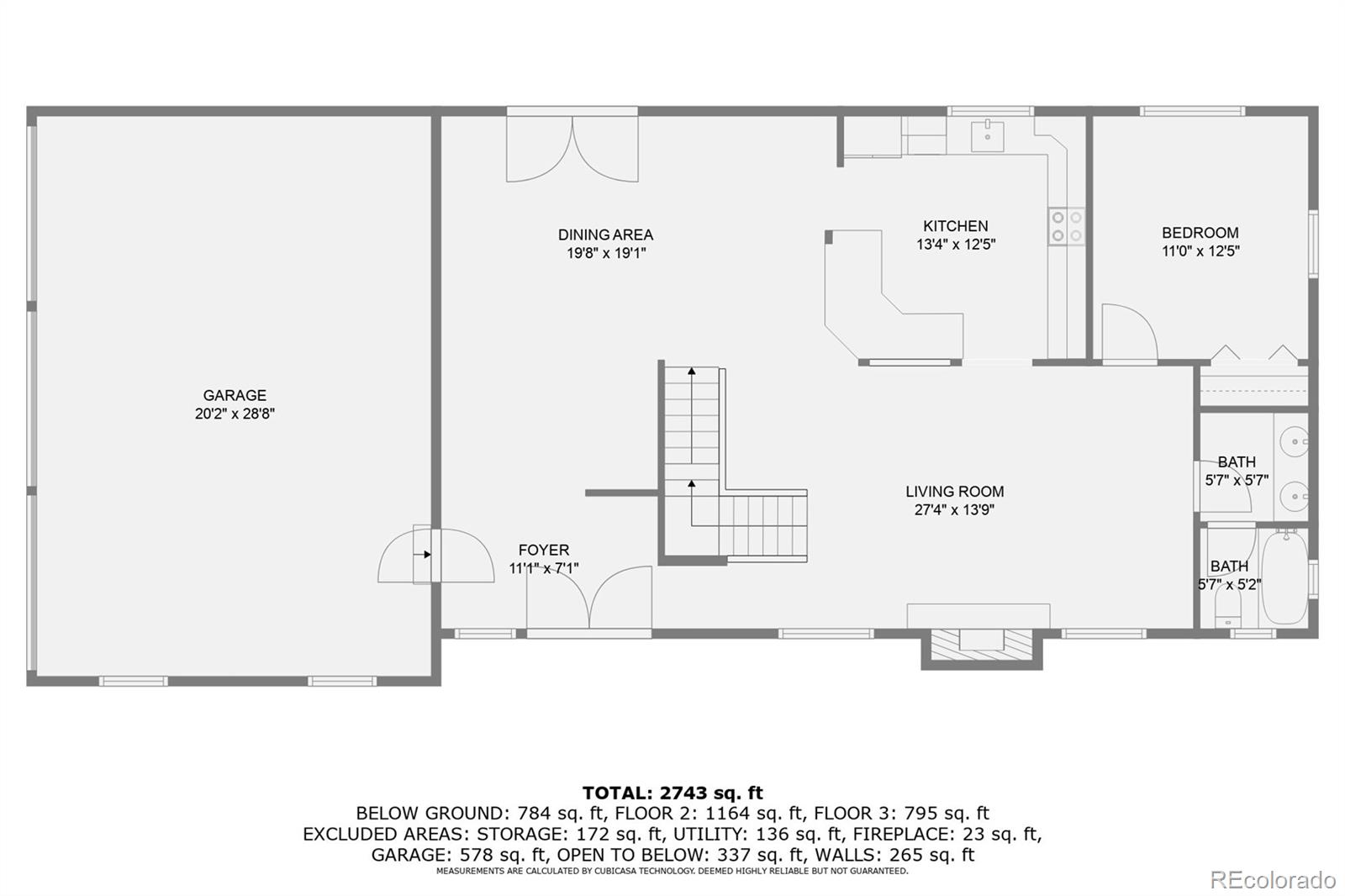
Great location in a wonderful neighborhood. No house directly behind and overlooking a greenbelt/open space. Located on a spacious corner lot, this home was custom built and features 4 beds (3 upper / 1 main), 4 baths, living room, dining room, kitchen, finished WALKOUT basement (family / rec room w/wet bar, storage, laundry/utility room) and a rare 3 car garage. Recent upgrades and updates include a new roof, stamped concrete walkway & front porch area poured; exterior paint including shed; some interior paint; all new carpeting with waterproof underliner; energy-efficient skylight; therma-tru front doors; retaining wall in the back yard; all new fencing & gate; wifi-equipped sprinkler system; gutter drainage / landscaping and regrading; professional arborist work (tree trimming, fertilizer & cabling for future growth); custom double-insulated window blinds upstairs & basement; upstairs toilets; light fixtures; new chimney caps and professional deep cleans for the 2 wood-burning fireplaces; screens for sliding balcony doors upstairs. Earlier upgrades include an electrical subpanel; sewer line (scoped & cleaned 3/25 and found to be in great shape) and an Ecobee HVAC system that connects to a phone app. No HOA. The finished basement is perfect for guests or that teen wanting their own space. Relax after a long day on the upper balcony, ground level patio or garden in the tiered beds. Close to dining, shopping, entertainment and other amenities. 2 blocks from Club Crest Park North and Two Ponds National Wildlife Refuge. Don’t miss your opportunity. Welcome Home!
The content relating to real estate for sale in this Web site comes in part from the Internet Data eXchange ("IDX") program of METROLIST, INC., DBA RECOLORADO® Real estate listings held by brokers other than RE/MAX Professionals are marked with the IDX Logo. This information is being provided for the consumers' personal, non-commercial use and may not be used for any other purpose. All information subject to change and should be independently verified. The listing broker’s offer of compensation is made only to participants of the MLS where the listing is filed. This publication is designed to provide information with regard to the subject matter covered. It is displayed with the understanding that the publisher and authors are not engaged in rendering real estate, legal, accounting, tax, or other professional services and that the publisher and authors are not offering such advice in this publication. If real estate, legal, or other expert assistance is required, the services of a competent, professional person should be sought. The information contained in this publication is subject to change without notice. METROLIST, INC., DBA RECOLORADO MAKES NO WARRANTY OF ANY KIND WITH REGARD TO THIS MATERIAL, INCLUDING, BUT NOT LIMITED TO, THE IMPLIED WARRANTIES OF MERCHANTABILITY AND FITNESS FOR A PARTICULAR PURPOSE. METROLIST, INC., DBA RECOLORADO SHALL NOT BE LIABLE FOR ERRORS CONTAINED HEREIN OR FOR ANY DAMAGES IN CONNECTION WITH THE FURNISHING, PERFORMANCE, OR USE OF THIS MATERIAL. PUBLISHER'S NOTICE: All real estate advertised herein is subject to the Federal Fair Housing Act and the Colorado Fair Housing Act, which Acts make it illegal to make or publish any advertisement that indicates any preference, limitation, or discrimination based on race, color, religion, sex, handicap, familial status, or national origin. METROLIST, INC., DBA RECOLORADO will not knowingly accept any advertising for real estate that is in violation of the law. All persons are hereby informed that all dwellings advertised are available on an equal opportunity basis. © 2025 METROLIST, INC., DBA RECOLORADO® - All Rights Reserved 6455 S. Yosemite St., Suite 500 Greenwood Village, CO 80111 USA ALL RIGHTS RESERVED WORLDWIDE. No part of this publication may be reproduced, adapted, translated, stored in a retrieval system or transmitted in any form or by any means, electronic, mechanical, photocopying, recording, or otherwise, without the prior written permission of the publisher. The information contained herein including but not limited to all text, photographs, digital images, virtual tours, may be seeded and monitored for protection and tracking.
Data services provided by IDX Broker
| Price: | $$798,850 |
| Address: | 7792 Garrison Court |
| City: | Arvada |
| County: | Jefferson |
| State: | Colorado |
| Subdivision: | Sierra Estates |
| MLS: | 1709869 |
| Square Feet: | 3,139 |
| Acres: | 0.24 |
| Lot Square Feet: | 0.24 acres |
| Bedrooms: | 4 |
| Bathrooms: | 4 |
| Half Bathrooms: | 1 |
| ppa: | 3328541.67 |
| levels: | Two |
| taxYear: | 2024 |
| psfTotal: | 254.49 |
| priceType: | List Price |
| roomCount: | 15 |
| areaSource: | Public Records |
| basementYN: | yes |
| exclusions: | Seller's personal possessions. Some furnishings are available for sale if buyer wants them. |
| highSchool: | Pomona |
| possession: | Negotiable |
| commonWalls: | No One Above |
| contingency: | None Known |
| lotSizeArea: | 10324 |
| psfFinished: | 254.49 |
| listingTerms: | Cash, Conventional, FHA, VA Loan |
| lotSizeUnits: | Square Feet |
| parkingCount: | 1 |
| psfAboveGrade: | 409.46 |
| structureType: | House |
| windowFeatures: | Double Pane Windows, Skylight(s), Window Coverings |
| roadSurfaceType: | Paved |
| taxAnnualAmount: | 4642 |
| waterIncludedYN: | yes |
| elementarySchool: | Warder |
| roadFrontageType: | Public |
| mainLevelBedrooms: | 1 |
| propertyCondition: | Updated/Remodeled |
| restrictionsOther: | Buyer to check City / County Regulations |
| contractMinEarnest: | 10000.00 |
| mainLevelBathrooms: | 1 |
| roadResponsibility: | Public Maintained Road |
| upperLevelBedrooms: | 3 |
| upperLevelBathrooms: | 2 |
| allowedUseCaseGroups: | IDX |
| associationFeeAnnual: | 0.00 |
| middleOrJuniorSchool: | Pomona |
| associationFee2Annual: | 0.00 |
| associationFee3Annual: | 0.00 |
| restrictionsCovenants: | Other |
| aboveGradeFinishedArea: | 1951 |
| basementLevelBathrooms: | 1 |
| belowGradeFinishedArea: | 1188 |
| contractEarnestCheckTo: | Land Title Guarantee |
| interiorOrRoomFeatures: | Granite Counters, High Ceilings, Primary Suite, Quartz Counters, Radon Mitigation System, Vaulted Ceiling(s), Walk-In Closet(s), Wet Bar |
| restrictionsCovenantsYN: | yes |
| specialTaxingDistrictYN: | no |
| specialListingConditions: | None |
| associationFeeTotalAnnual: | 0.00 |
| middleOrJuniorSchoolDistrict: | Jefferson County R-1 |