
Pending Listing by: RE/MAX Professionals
***Contact Lennar today about Special Financing for this home** Terms and conditions apply** Our special financing could make your dream a reality!
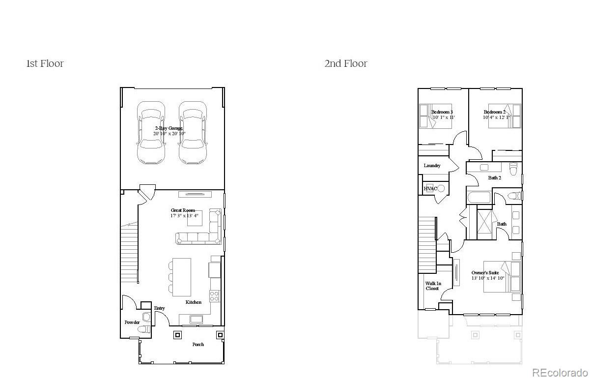
Anticipated completion June 2025! Low maintenance living in this gorgeous new Sterling Ranch community. Just lock up and go. This brand new end unit 2-story townhome is in a 3-plex and features 3 bedrooms, 2.5 baths, great room, kitchen, loft, upper laundry, 2 car attached garage (rear alley entry) and conditioned crawl space. Gorgeous finishes and upgrades throughout including luxury vinyl plank flooring, stainless steel appliances, slab quartz counters, solar and more. Lennar provides the latest in energy efficiency and state of the art technology with several fabulous floorplans to choose from. Energy efficiency, and technology/connectivity seamlessly blended with luxury to make your new house a home. Sterling Ranch offers several fabulous plans to choose from. Photos are model only and subject to change.
The content relating to real estate for sale in this Web site comes in part from the Internet Data eXchange ("IDX") program of METROLIST, INC., DBA RECOLORADO® Real estate listings held by brokers other than RE/MAX Professionals are marked with the IDX Logo. This information is being provided for the consumers' personal, non-commercial use and may not be used for any other purpose. All information subject to change and should be independently verified. The listing broker’s offer of compensation is made only to participants of the MLS where the listing is filed. This publication is designed to provide information with regard to the subject matter covered. It is displayed with the understanding that the publisher and authors are not engaged in rendering real estate, legal, accounting, tax, or other professional services and that the publisher and authors are not offering such advice in this publication. If real estate, legal, or other expert assistance is required, the services of a competent, professional person should be sought. The information contained in this publication is subject to change without notice. METROLIST, INC., DBA RECOLORADO MAKES NO WARRANTY OF ANY KIND WITH REGARD TO THIS MATERIAL, INCLUDING, BUT NOT LIMITED TO, THE IMPLIED WARRANTIES OF MERCHANTABILITY AND FITNESS FOR A PARTICULAR PURPOSE. METROLIST, INC., DBA RECOLORADO SHALL NOT BE LIABLE FOR ERRORS CONTAINED HEREIN OR FOR ANY DAMAGES IN CONNECTION WITH THE FURNISHING, PERFORMANCE, OR USE OF THIS MATERIAL. PUBLISHER'S NOTICE: All real estate advertised herein is subject to the Federal Fair Housing Act and the Colorado Fair Housing Act, which Acts make it illegal to make or publish any advertisement that indicates any preference, limitation, or discrimination based on race, color, religion, sex, handicap, familial status, or national origin. METROLIST, INC., DBA RECOLORADO will not knowingly accept any advertising for real estate that is in violation of the law. All persons are hereby informed that all dwellings advertised are available on an equal opportunity basis. © 2025 METROLIST, INC., DBA RECOLORADO® - All Rights Reserved 6455 S. Yosemite St., Suite 500 Greenwood Village, CO 80111 USA ALL RIGHTS RESERVED WORLDWIDE. No part of this publication may be reproduced, adapted, translated, stored in a retrieval system or transmitted in any form or by any means, electronic, mechanical, photocopying, recording, or otherwise, without the prior written permission of the publisher. The information contained herein including but not limited to all text, photographs, digital images, virtual tours, may be seeded and monitored for protection and tracking.
Data services provided by IDX Broker
| Price: | $$569,684 |
| Address: | 8927 San Antonio Street |
| City: | Littleton |
| County: | Douglas |
| State: | Colorado |
| Subdivision: | Sterling Ranch |
| MLS: | 9616605 |
| Square Feet: | 1,623 |
| Acres: | 0.04 |
| Lot Square Feet: | 0.04 acres |
| Bedrooms: | 3 |
| Bathrooms: | 3 |
| Half Bathrooms: | 2 |
| ppa: | 14242100.00 |
| levels: | Two |
| taxYear: | 2024 |
| psfTotal: | 351.01 |
| priceType: | Base Price |
| roomCount: | 10 |
| areaSource: | Public Records |
| basementYN: | no |
| exclusions: | Seller's personal possessions and any staging items that may be in use |
| highSchool: | Thunderridge |
| possession: | Closing/DOD |
| builderName: | Lennar |
| commonWalls: | No One Above, No One Below |
| contingency: | None Known |
| lotSizeArea: | 0.04 |
| psfFinished: | 351.01 |
| builderModel: | 306 / MP4 |
| listingTerms: | Cash, Conventional, FHA, VA Loan |
| lotSizeUnits: | Acres |
| parkingCount: | 1 |
| psfAboveGrade: | 351.01 |
| structureType: | Townhouse |
| homeWarrantyYN: | yes |
| windowFeatures: | Double Pane Windows |
| associationName: | Sterling Ranch Metro Taxing District |
| feeFrequencyMLS: | Monthly |
| roadSurfaceType: | Paved |
| taxAnnualAmount: | 7136 |
| elementarySchool: | Roxborough |
| roadFrontageType: | Public |
| propertyCondition: | New Construction, Under Construction |
| restrictionsOther: | Buyer to check Douglas county |
| contractMinEarnest: | 5000.00 |
| mainLevelBathrooms: | 1 |
| roadResponsibility: | Public Maintained Road |
| upperLevelBedrooms: | 3 |
| upperLevelBathrooms: | 2 |
| allowedUseCaseGroups: | IDX |
| associationFeeAnnual: | 1020.00 |
| middleOrJuniorSchool: | Ranch View |
| associationFee2Annual: | 0.00 |
| associationFee3Annual: | 0.00 |
| restrictionsCovenants: | Other |
| aboveGradeFinishedArea: | 1623 |
| contractEarnestCheckTo: | Lennar |
| interiorOrRoomFeatures: | Kitchen Island, Primary Suite, Smoke Free, Walk-In Closet(s) |
| multipleAssociationsYN: | no |
| restrictionsCovenantsYN: | yes |
| specialTaxingDistrictYN: | yes |
| specialListingConditions: | None |
| associationFeeTotalAnnual: | 1020.00 |
| associationManagementType: | Professionally Managed |
| middleOrJuniorSchoolDistrict: | Douglas RE-1 |
| timeOfCompletionFromGroundbr: | Anticipated Completion June 2025 |